


130 000 ₽/м²
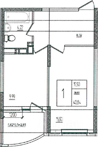
Жилой комплекс представляет собой 4 корпуса высотой в 16 этажей. Фасад выполнен из вентилируемых материалов. В комплексе предложено множество планировочных решений: в наличии квартиры, как классического типа, так и европланировки. Они сдаются с подчистовой отделкой, высота потолков составляет 2,7 метра. Внутренний двор оснащен современными детскими и спортивными площадками. На территории комплекса выполнено озеленение. Для владельцев автомобилей предусмотрена крытая стоянка и отдельный многоуровневый паркинг. ЖК расположен в районе завода радиоизмерительных приборов. В 15 минутах пешком находятся: детские сады, школы, больницы, магазины. До центра Краснодара — 15 минут транспортом. Купить 1-комнатную квартиру на улице Кирилла Россинского в городе Краснодар.































































































































