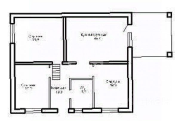
Продаю замечательный дом с хорошей энергетикой. Мебель, техника полностью укомплектован все остается новым владельцам. Все хорошего качества . Площадь дома- 190 м2, площадь бани 50 м2. В доме на первом этаже расположены- котельная, зал, кухня, кабинет, совмещенный с/у и душ На втором эаже- 3 спальни, изолированная ванная, с/у, гардеробная( на лоджии- с теплым полом) Теплые полы- коридор 1 эт, котельная, с/у, кухня, ванная и с/у 2го этажа и лоджия. Мансарда 70 м2- без ремонта ( отдельно от площади дома) В бане- парная, с/у и душ, комната отдыха, бассейн 2.5*2.0*2.2, отдельный вход в хозяйственное помещение со стеллажами. Электричество 15 кВт. Водоснабжение и канализация центральные. Отопление газовое- сетевое. На улице- навес, мангальная зона с раковиной , газовой плитой. Во дворе плитка. Зона газона и цветника огорожена небольшим забором. Видеонаблюдение подключено, вневедомственная охрана осуществляется. Ворота открываются пультом. Есть все для комфортной жизни. На улице- огороженные газоны с елками и можжевельниками. Хорошее тихое место дороги широкие не снт! Можно докупить соседний участок для расширения. Рядом новая школа детский сад. Все социальные обьекты в доступности. Просмотр по согласованию, торг. Звоните не стесняйтесь










































































