Только на Циан
Волна
18 минут на транспорте
5 850 000 ₽
Дом у двух морей. Тамань, Винная деревня
500 метров пешком — и вы на берегу Азовского моря.
5 минут на машине — и вы на центральной набережной.
Вы не просто покупаете 49,9 м². Вы покупаете утро с кофе под шелест акации и вечерние прогулки по аллее за калиткой.
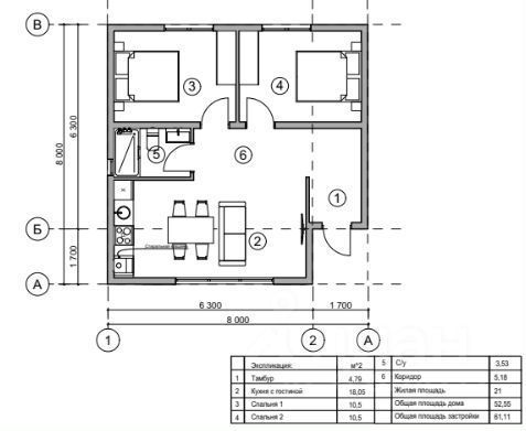
Уютный дом 2 спальни + просторная кухня-гостиная. Два выхода на свою залитую плиткой территорию — можно вынести стол для ужина на улицу. Внутри качественный ремонт, современный санузел, встроенная лестница на чердак (там кладовка или рабочая зона).
Завози свою любимую мебель и живи в комфорте.
Участок: 2,5 сотки, выложен плиткой — место для шезлонга, мангала или пары кустов лаванды.
Что важно: напротив дома — аллея. Можно сделать прямой выход и гулять, не обходя квартал. В квартале имеется общий бассейн и место отдыха.
Азовское море 500 метров от дома. Чёрное — рядом.
Посёлок тихий, виноградники, винные погреба. Воздух, который нельзя купить в городе. Продается дом в станице Тамань Темрюкского района.



















































































