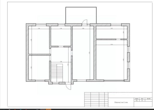
Продаётся уютный дом в коттеджном посёлке Курортный! Основные характеристики: общая площадь 102 кв.м участок 4,5 соток большая кухня-гостиная три жилые комнаты электричество, газ, водопровод, центральная канализация Площадь дома составляет 102 кв. м, участок 4,5 сотки. Построен из высококачественного материала паромакс и снаружи отделан декоративной штукатруркой. Внутри выполнен современный дизайнерский ремонт. Планировка включает следующие помещения: кухня-столовая, совмещённая с гостиной (41 кв.м); хозяйская спальня с отдельным санузлом (15 кв.м); спальня (12,5 кв. м); гостевая спальня или кабинет, гардеробная (8 кв.м); основной санузел (5 кв.м); холл (9 кв.м). Дом оснащён небольшой террасой с выходом на задний двор. Все коммуникации центральные, по всему дому проложены теплые полы и установлены качественные радиаторы. Расположение дома учитывает разрешённые отступы от границ участка. Площадь участка позволяетразбить небольшой сад или огород, обустроить зону отдыха с беседкой и мангалом или установить бассейн. Не упустите возможность стать обладателем этого прекрасного дома и начните новую главу в своей жизни! Обращайтесь к нам, и мы с радостью ответим на все ваши вопросы и поможем сделать правильный выбор. Звоните и записывайтесь на просмотр! Наши специалисты всегда готовы Вас проконсультировать и подобрать подходящий объект недвижимости. Добавляйте объявление в избранное, чтобы наш контакт всегда был под рукой. Продажа домом с газом в Горячем Ключе.
























































































