132 873 ₽/м²
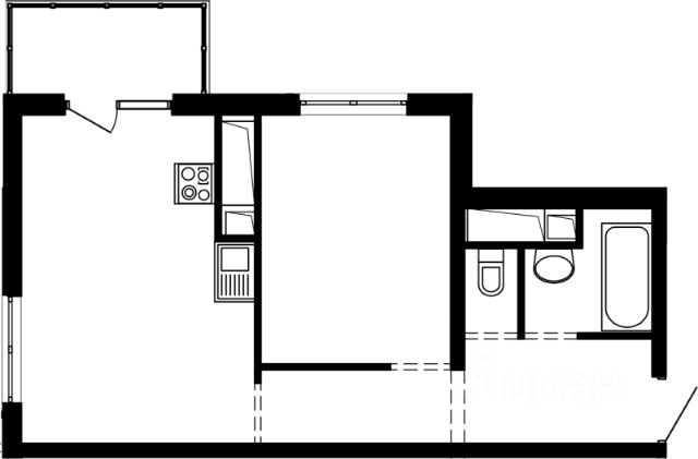
Прошу риелтерам мне не звонить. Я собственник! Продается просторная 2-комнатная квартира в Краснодаре на улице имени Валерия Гассия, 2. Общая площадь — 65,1 кв. м, жилая площадь — 31 кв. м, кухня впечатляющих размеров — 22 кв. м. Квартира расположена на 15 этаже 16-этажного дома, построенного в 2022 году. Высота потолков — 2,75 метра. В квартире сделан современный евроремонт. очень большая кухня-гостинная, отличное место для семейных обедов и встреч с друзьями. Есть одна лоджия и один балкон, откуда открывается вид на улицу и во двор. Санузел раздельный, в разных местах. Квартиру покупала в черновой отделке , ремонт новый ,стены все без повреждений, в спальнях сплит системы, в кухне под сплит заложена электрика, все блага интернета в наличии разведены под смарт ТВ во всех комнатах, под компьютер в двух местах. Дом кирпичный, оснащен пассажирским и грузовым лифтами, что удобно при переезде и для ежедневных нужд. Для автомобилистов предусмотрена наземная парковка, а наличие пандуса делает дом доступным для всех категорий граждан. Район насыщен необходимой инфраструктурой: в шаговой доступности детские сады, клиники и магазины. Новая современная школа в 7 мин ходьбы. ТЦ с магазинами за домом, в арку дома выход на новенький , красивый ,зеленый Николаевский бульвар . Кубань река рукой подать пешком, рыбалка и просто выходной день пройтись по берегу. Выезд с района на аэропорт (20мин), Черноморское побережье. Это значит, что все необходимое для комфортной жизни будет у вас под рукой. Отличная транспортная доступность ( конечные остановки ). Квартира продается без обременений, возможна продажа в ипотеку. Все документы готовы к сделке, а собственник — честный и открытый к диалогу человек










































































