


Только на Циан
Сады
15 минут на транспорте
16 999 999 ₽
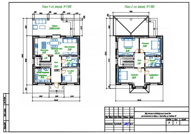
Продается капитальный 2-этажный жилой дом — 314,2м.Кв полностью построенный из красного забутовочного кирпича с монолитными перекрытиями и монолитным подвал-цоколь 65м.Кв . Сам дом обложен керамическим кирпичом Липецкого завода Тербунский Гончар, внутри дома по периметру двора а также под наружное наблюдение заложены кабель и интернет. Стены в предчистовой отделке (осталось наклеить обои), сухая стяжка по всему дому.
В доме находится просторный подвал площадью 65 кв. м. с высоким потолком. Толщина стен составляет 50 см, что обеспечивает отличную звукоизоляцию и теплоизоляцию. В доме на первом этаже сделаны теплые водяные полы, на 2-ом этаже в ванной (теплые полы). Установлены окна в доме из профиля REHAY с зеркальным стеклопакетом. Двор бетонирован и уложена тротуарная плитка, цоколь дома облицован керамической плиткой. В заборе заложены металлические столбы для установки навеса. Дом подключен к центральным коммуникациям — ГАЗ, ВОДА. Сделан септик с двойным переливом. Весь периметр забора сделан из керамического кирпича Липецкого, двое электрических ворот во въезд двора. 1-й этаж дома: 2 спальни, большая гостиная, туалет-ванная. 2-й этаж дома: 2 спальни, большая гостиная, туалет-ванная.
Дом расположен в тихом, экологически чистом районе города Краснодара. Подъезд к дому по асфальту, рядом магазины, школа 31, детский сад 50 , аптека, ТЦ Красная площадь в 5 минутах езды, спортивный комплекс Баскет-Холл, строится трамвайная ветка. Дом построен на века, для себя. Выполнена качественная предчистовая отделка во всем доме, а двор полностью готов.
Идеально подойдет дом для проживания как большой семьи , людей ценящих пространство и комфорт, так и организации любого дошкольного учреждения ( будь то Детский частный сад, Продленка или Школа ), Рехаб или Йога-Центр , Площадь и планировка дома позволяют реализовать любые планы !
Звоните отвечу на все вопросы, продажа дома связана с переездом - строили для себя, что отчетливо видно при первом же взгляде на дом.
Не упустите лучшее предложение на рынке! Приходите, убедитесь сами! Продам загородную недвижимость в микрорайоне Сады Калинина в городе Краснодар.




















































































