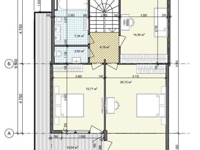
Продается новый дом рядом с лесом! Основные характеристики: общая площадь 107 м участок 4,3 соток три жилые комнаты электричество, газ, водопровод, центральная канализация Год постройки - 2025, что гарантирует использование самых современных технологий и материалов в строительстве. Общая площадь дома составляет 107 квадратных метров, он расположен на участке 4,3 сотки. Стены выполнены из высококачественных материалов - Паромакса с облицовкой керамическим кирпичом, что обеспечивает отличную теплоизоляцию и долговечность конструкции. Продуманная планировка включает в себя все необходимые помещения для комфортной жизни: просторную кухню-гостиную, три спальни, гардеробную, котельную, два санузла и удобную прихожую с коридором. Особое внимание уделено качеству отделки и комфорту проживания. В доме выполнен премиальный дизайнерский ремонт, установлен тёплый пол по всей площади помещения, проведены центральные коммуникации. Дом полностью готов к заселению - осталось только занести мебель! Территория участка благоустроена и оснащена всем необходимым: имеется бетонный заезд и парковка, территория отсыпана плодородным чернозёмом, установлены электрические ворота и калитка, предусмотрена система под домофон. Расположение дома - одно из главных преимуществ этого предложения. Живописная локация рядом с лесом обеспечивает прекрасный вид и чистый воздух, при этом до центра города можно добраться пешком. Удачное сочетание уединённости и доступности городской инфраструктуры делает этот дом идеальным местом для жизни. Не упустите возможность стать владельцем нового дома, где уже всё готово для комфортной жизни! Звоните прямо сейчас, чтобы узнать подробности и договориться о просмотре в удобное для Вас время. Наши специалисты всегда готовы Вас проконсультировать и подобрать подходящий объект недвижимости. Добавляйте объявление в избранное, чтобы наш контакт всегда был под рукой. Загородная недвижимость на улице Ольховая в городе Горячий Ключ.










































































