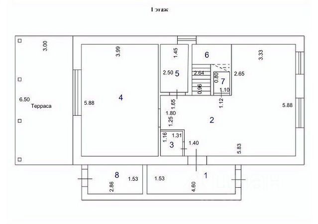
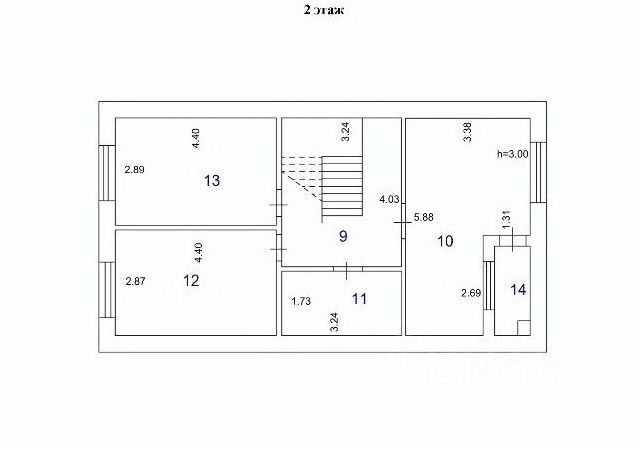
Предлагаем вашему вниманию уютный дом в престижном районе Краснодара! В непосредственной близости от ТЦ Красная Площадь, в тихом и спокойном поселке Северном! Площадью 164 м², где каждый уголок создан с любовью и вниманием к деталям. Просторная гостиная (35 м²) встретит вас теплом и уютом, располагая к приятным вечерам в кругу семьи и друзей. Современная кухня (23 м²) настоящий рай для кулинара, оснащенная всем необходимым оборудованием, которое станет приятным бонусом для новых владельцев! Элегантный холл (7 м²) плавно соединяет все пространства первого этажа. Две удобные гардеробные (1,5 м² и 1 м²) помогут организовать хранение вещей. Совмещенный санузел (6 м²) выполнен в современном стиле. Просторная терраса (20 м²) станет любимым местом для отдыха на свежем воздухе. Второй этаж это территория спокойствия и уединения: Три уютные спальни (20 м², 13 м² и 13 м²) идеальное место для отдыха и восстановления сил. Светлый холл (5 м²) объединяет спальни. Удобный санузел (6 м²) выполнен в светлых тонах. С балкона открывается прекрасный вид на окрестности. Все коммуникации подключены и исправно функционируют: электричество (5 кВт), скважина с чистой водой, септик для канализации, газ заведен в дом. Дом расположен на участке 3,4 сотки, предназначенном для индивидуального жилищного строительства (ИЖС). Год постройки 2018, что гарантирует его современное состояние. Благоустроенная территория включает в себя удобный подъезд с асфальтированной дороги, баню для душевного отдыха, мангальную зону для приготовления вкусных блюд на свежем воздухе, навес на весь передний двор и парковочное место. Развитая инфраструктура района это все, что нужно для комфортной жизни: школы, детские сады, магазины, аптеки, кафе, спортивные площадки, детские клубы, торговые центры, пункты выдачи заказов все в шаговой доступности. Рядом с домом находится остановка общественного транспорта. При покупке взимается комиссия агентства. Продается загородная недвижимость на проезде 6-й Архангельский в городе Краснодар.













































































