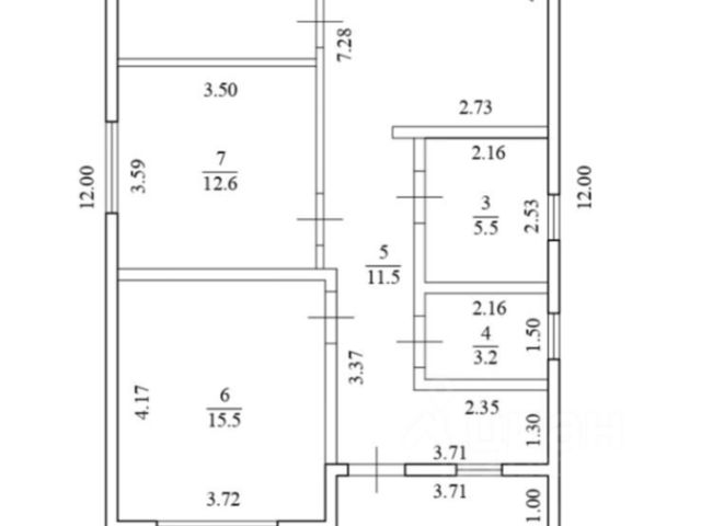
Арт. 119183220 Предлагается к покупке КОТТЕДЖ в экологически чистом районе. Коттеджный поселок в Раевской - городском округе Новороссийска. Выбрано удивительное расположение - на возвышенности холмов, где с восточной стороны великой стеной от ветров защищают горы, с другой, западной - уходит прекрасный вид на долину виноградников и море. Для вашей безопасности периметр поселка закрыт забором, а на территории установлено видеонаблюдение. Вы можете быть абсолютно спокойны. Спортивная и общеобразовательная школа, детский сад, наличие инфраструктуры магазинов и транспорта, единственный в округе гольф-корт, развитие винного туризма от знаменитой Лефкадии Крыма. О ДОМЕ: -Общая площадь 84 м2; -Функциональная планировка: кухня-гостиная 18,6 м2, жилые комнаты 15,5+12,6+12,6 м2; совмещенный санузел 5,5 м2. ЗВОНИТЕ прямо сейчас и записывайтесь на просмотр. ПОЧЕМУ МЫ? 1. Так как мы являемся частью компании Самолет +, мы поможем одобрить вам ипотеку от 12,75% на вторичное жилье. 2. Так же всем нашим клиентам мы дарим полезные подарки, в том числе путёвка в Турцию на двоих. 3. Наш офис предоставляет полное юридическое сопровождение, а так же помощь и консультирование в получении ипотеки. Наши ипотечные брокеры подберут выгодные условия, расскажем какие документы нужны для оформления. 4. Мы против фейков и работаем только по юридически чистым объектам. 5. Нас рекомендуют, потому что мы честно и справедливо относимся к нашей работе.

























































































