


98 446 ₽/м²
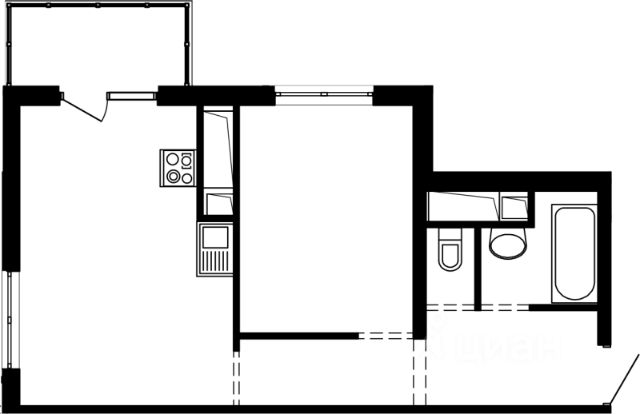
Продается светлая евро двухкомнатная квартира рядом с рекой Кубань! В квартире сделан частичный ремонт, на полу линолеум, поклеены обои, остается только поставить межкомнатные двери и натянуть потолки. В данной локации очень развитая инфраструктура, можно не выезжать никуда за пределы микрорайона! Дом располагается рядом с выездом из города, магазины все рядом, сады, школа и поликлиника в шаговой доступности. Во дворе есть детская и огороженная спортивная площадки, много парковочных мест. В пешей доступности располагается множество детских садов: 119, 190, 208, 183, 166 и 191 - нет проблем с выбором детского сада для своего ребенка! Также рядом с домом находятся школы 46, 52, 70 и гимназия 69. До КубГУ можно добраться за 40 минут на общественном транспорте, за такое же время на автобусе можно доехать до сельскохозяйственного колледжа - что делает приобретение данной квартиры выгодной для сдачи студентам! В 15 минутах ходьбы находится поликлиника 27. Всего в 5-6 минутах пешей прогулки располагается Торговый центр Трилогия! Дом находится в непосредственной близости с лесопарком, где можно гулять с семьей и друзьями и любоваться красивыми видами. Также в пешей доступности находится Николаевский бульвар и набережная у реки Кубань. Ближайшая остановка общественного транспорта в 4 минутах ходьбы, с которой связана маршрутка 34, на которой можно легко добраться до центра. Локация наполненная и богата местами для прогулок и отдыха, квартира отлично подойдет для семейной пары или для сдачи в аренду! Звоните, организую просмотр!


















































































